해리슨 / Heylitsen

위치 : 제주도 서귀포시 남원읍 태흥리 / Location : Taehung-ri, Namwon-eup, Seogwipo-si, Jeju-do
프로그램 : 연구소 / Program : Company Lab
설계 협업 : 에이스케이프 건축사사무소 / Design Collaboration : Ascape Architects
완공 년도 : 2024 / Completion Year : 2024

해안 도로에서 바라본 전경 / View from the coastal road

바다에서 바라본 풍경 / View from the sea

전경 코너과 후면 / Front Corner and Rear Views

해리슨커뮤니케이션즈는 서울에 본사를 둔 광고회사이다. ‘해리슨’이란 말은 영어 ‘헤이 리슨(Heylitsen)’을 줄인 말이다. 해리슨은 제주도에 작은 연구소를 기획했다. 직원들이 제주에서 여행하고 일하며 여가를 즐길 수 있는, 즉 ‘워케이션(Work+Vacation)’을 위한 시설이다. 대지는 서귀포시 인근 해변가에 위치한다. 화산석이 즐비한 해변은 제주 특유의 아름다운 풍광을 지녔다.

Heylitsen is an advertising agency headquartered in Seoul. The name “heylitsen” is derived from the English phrase “Hey, listen.” Heylitsen planned a small research lab on Jeju Island—an environment designed for workation (work + vacation), where employees can travel, work, and enjoy leisure at the same time. The site is located along the coast near Seogwipo. The shoreline, scattered with volcanic stones, possesses the distinctive beauty unique to Jeju.

제주도와 대지 위치 / Jeju Island and Site Location

대지 항공 사진 / Site Aerial Photo

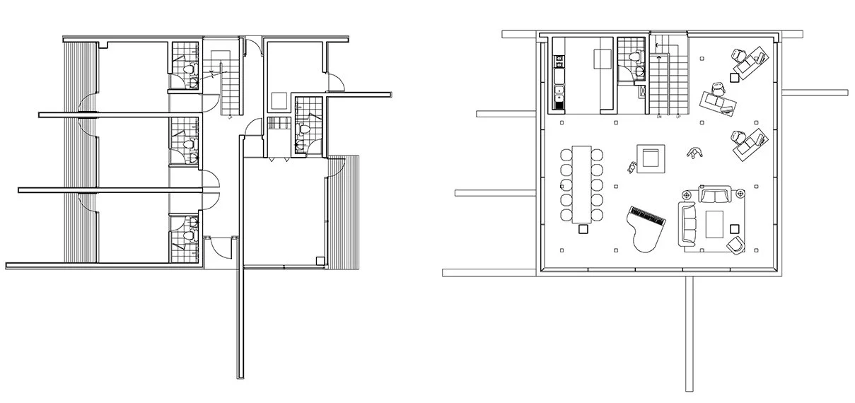
주어진 프로그램은 크게 두 종류였다. 하나는 직원들이 머무는 객실형 숙박공간이고, 다른 하나는 바다를 보며 일할 수 있는 라운지공간이다. 숙박 시설은 수목과 돌담에 둘러싸인 지상층에 배치하여 프라이버시와 아늑함을 부여하는 것이 적합했다. 라운지는 파노라마 바다뷰를 볼 수 있도록 2층에 계획했다. 이러한 구성을 기반으로 여러 디자인 스터디를 진행했다. 최종으로 결정된 안은 커다란 곡면 지붕을 가진 디자인이었다. 바다를 향해 크게 열린 곡면판은 파도, 물결, 바람의 흐름을 연상시킨다. 전체 공간에 활력과 긴장감 그리고 정체성을 부여한다. 자유롭게 가구를 배치하여 열린 마음으로 일하고 대화할 수 있게 했다. 지붕 테라스에서는 바닷바람을 쐬며 일출과 석양을 즐긴다.

The program consisted of two main components. One was accommodation for staff, arranged as individual guest rooms; the other was a lounge space where people could work while looking out over the sea. It was appropriate to place the accommodation on the ground level, surrounded by trees and stone walls, to provide privacy and a sense of comfort and enclosure. The lounge was planned on the second floor to secure a panoramic ocean view. Based on this configuration, several design studies were conducted. The final scheme adopted a design defined by a large curved roof. The broad curved plane opening toward the sea evokes waves, ripples, and the flow of wind, giving the entire space vitality, tension, and a clear identity. Furniture was arranged freely to encourage open-minded work and conversation. On the roof terrace, one can enjoy the sea breeze while taking in both sunrise and sunset.

지상층과 2층 평면도 / Ground & Upper Floor Plans

프로젝트를 진행하는 동안 어려웠던 점은 창문 프레임의 해결이었다. 곡면지붕이 날아가는 이미지로 만들려면, 창살 없이 유리만 있어야 하는데 그것은 불가능에 가까웠다. 비용과 기술 해결이 기하급수적으로 늘어나기 때문이다. 또한 제주 바다의 강한 풍압 때문에 수평 창살까지 넣을 수밖에 없었다. 해리슨 더 제주는 낮과 밤의 모습이 다르다. 낮에는 유리 반사 때문에 매스 형태가 강조된다. 밤에는 내부 빛으로 공간의 투명함과 곡면의 부유함이 드러난다. 바닷가에 내려앉은 우주선 같은 하얀 건축. 이는 여행하는 자의 유목적인 마음을 닮았다. 낯선 장소와 시간 속에서 창의적인 쉼과 상상을 꿈꾼다.  

One of the main challenges during the project was resolving the window framing. To realize the image of a flying curved roof, the façade would ideally consist of glass alone, without mullions—an ambition that proved nearly impossible, as costs and technical complexity would increase exponentially. Moreover, the strong wind pressure of the Jeju coast made it necessary to introduce horizontal mullions as well. Heylitsen Jeju reveals different expressions by day and by night. During the day, reflections on the glass emphasize the building’s mass. At night, interior light reveals the transparency of the space and the floating quality of the curved form. A white piece of architecture resting by the sea, like a landed spacecraft, it echoes the nomadic spirit of the traveler—dreaming of creative rest and imagination in unfamiliar places and times.

2층 라운지 내부 / Interior of 2F Lounge

새벽의 라운지 / Lounge at Dawn

옥상에서의 일출 / Sunrise from Roof Terrace

저녁의 바다 풍경 / Evening sea view

낮의 전경 / Daytime Fornt View


Previous
Previous

청림재 / Cheongnimjae

Next
Next

자미원 / Jamiwon